bv alte linde raumvermietung header 1x 1920x1000 1

Mieten Sie die Räume der „Alten Linde“

Für feierliche Stunden in bester Gesellschaft

Der Bürgerverein freut sich darauf, Sie in dem historischen Gebäude willkommen zu heißen. Der Verein bietet in den alten Mauern der „Linde“ im Erdgeschoss und in der 1. Etage Räume mit einer Größe von ca. 10 bis 50 m² für Veranstaltungen und Feste aller Art an.

Ob Sie kleine oder große Events planen, es gibt viele Möglichkeiten der Raumgestaltung und Nutzung. Ob Sie ein oder mehrere Räume beziehungsweise das ganze Haus mieten wollen, wir finden für Sie die passende Lösung.

ERDGESCHOSS

Im Erdgeschoss stehen mit Bauernstube, Kneipe und Festsaal drei Räumlichkeiten mit unterschiedlicher Atmosphäre zur Verfügung, die für private Feiern, Vereinsaktivitäten oder kulturelle Veranstaltungen genutzt werden können. Alle Räume sind ebenerdig gelegen, leicht zugänglich und lassen sich vielfältig gestalten. Gemeinsam bieten sie ein stimmiges Ambiente für größere Feste und schaffen damit den passenden Rahmen für unterschiedlichste Anlässe.

bv alte linde raumvermietung erdgeschoss

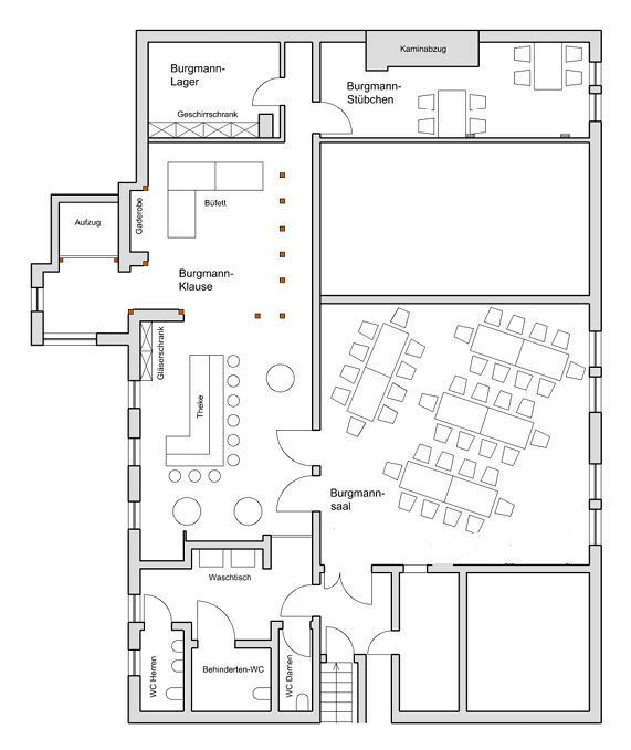
OBERGESCHOSS

Im Obergeschoss (1. Etage) stehen mit Burgmann-Saal, Burgmann-Klause und Burgmann-Stübchen drei Räume zur Verfügung, die vielfältig genutzt werden können – von Vereinssitzungen über Seminare bis hin zu privaten Feiern. Die Räume lassen sich flexibel einsetzen und bieten eine angenehme und ruhige Atmosphäre für die unterschiedlichsten Anlässe.

bv alte linde raumvermietung obergeschoss

Unsere Räumlichkeiten

bv alte linde raumvermietung raeume 1
Bauernstube

8-12

Idealer Raum für kleine Besprechungen,
wird oft auch genutzt als Büfettraum.

bv-alte-linde-raumvermietung-raeume-2
Festsaal

40-55

Der perfekte Saal, in dem Sie Ihre besonderen Momente feiern können, für Feiern ab 40 Personen.

bv alte linde raumvermietung raeume 3
Kneipe

30-45

Fliesenboden, uriger Schankraum, niedrige Balkendecke, dunkel gebeizte Tische und Stühle, Nischen mit Bänken.

bv alte linde raumvermietung burgmann slide 2
Burgmann-Saal

30-50

Der perfekte Saal für Feiern ab 30 Personen, Unbestuhlt als Dancefloor nutzbar.

bv alte linde burgmann klause 1624x1080 1
Burgmann-Klause

25-40

Der perfekte Raum für Feiern ab 25 Personen,
wird oft zusammen gebucht mit dem Burgmannsaal, genutzt oft als Raum für das Büfett.

bv alte linde burgmann stuebchen 1624x1080 1
Burgmann-Stübchen

8-12

Idealer Raum für kleine Besprechungen, barrierefrei erreichbar, u.a. über den Fahrstuhl.

alte linde kueche 1
Küche

Unsere Küche steht für Veranstaltungen zur Verfügung und bietet alle Voraussetzungen für eine reibungslose Bewirtung.

Belegungskalender

Nutzung des Kalenders

Sie können selbst bestimmen, wie die Termine angezeigt werden, wechseln Sie dazu oben rechts einfach zwischen Wochen-, Monats- oder Terminansicht.

In der Legende links lassen sich einzelne Räume an- oder abwählen, sodass Sie nur die Veranstaltungen sehen, die für Sie interessant sind. Und falls Sie eine Übersicht zum Mitnehmen möchten, lässt sich der Kalender auch ganz bequem ausdrucken.